➤北京怀柔区星悦雅园共有房房源信息
位置:北京市怀柔区杨宋镇凤翔一园10号。
项目四至为:东至地块东边界,南至开发区路,西至规划绿地,北至开发区北路。
图源为:北京市怀柔区人民政府
➤户型图
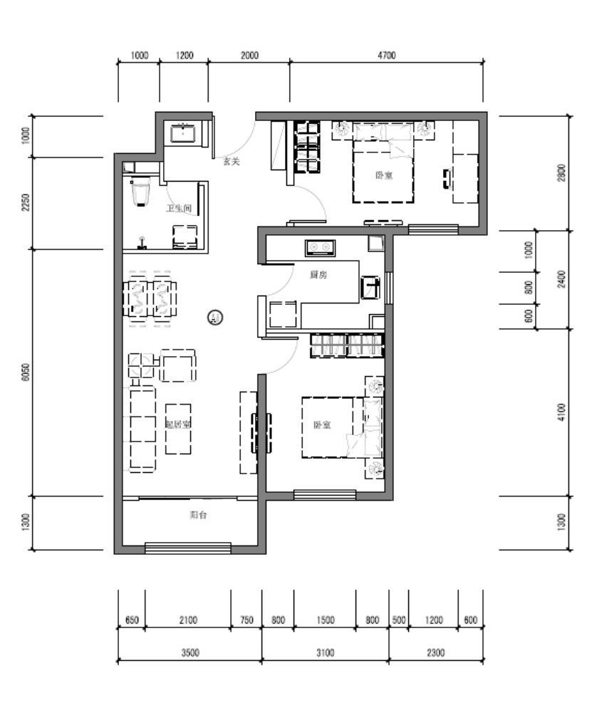
A户型
建筑面积约: 88㎡
户型所在楼栋:1#/2#/3#/5#/6#/8#/9#住宅楼。
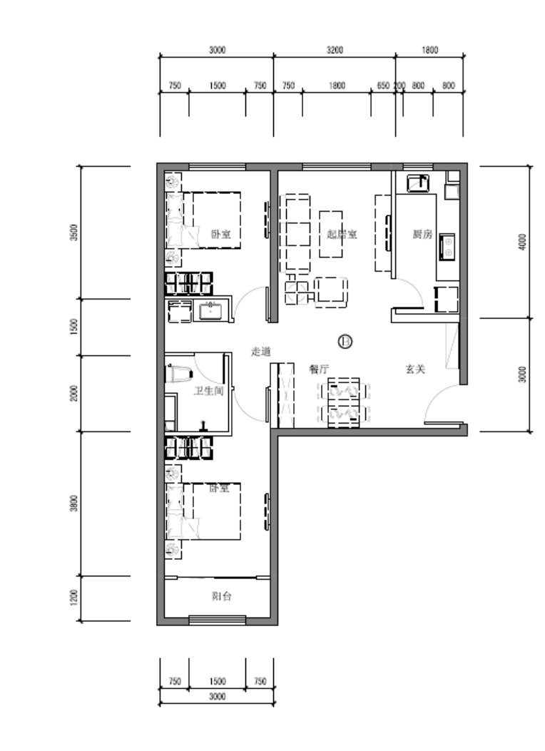
A反户型
建筑面积约: 88㎡
户型所在楼栋:1#/2#/3#/5#/6#/8#/9#住宅楼。
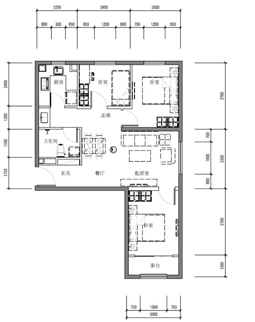
B户型
建筑面积约: 88㎡
户型所在楼栋:1#/2#/6#/8#/9#住宅楼。
B反户型
建筑面积约: 88㎡
户型所在楼栋:1#/2#/6#/8#/9#住宅楼。
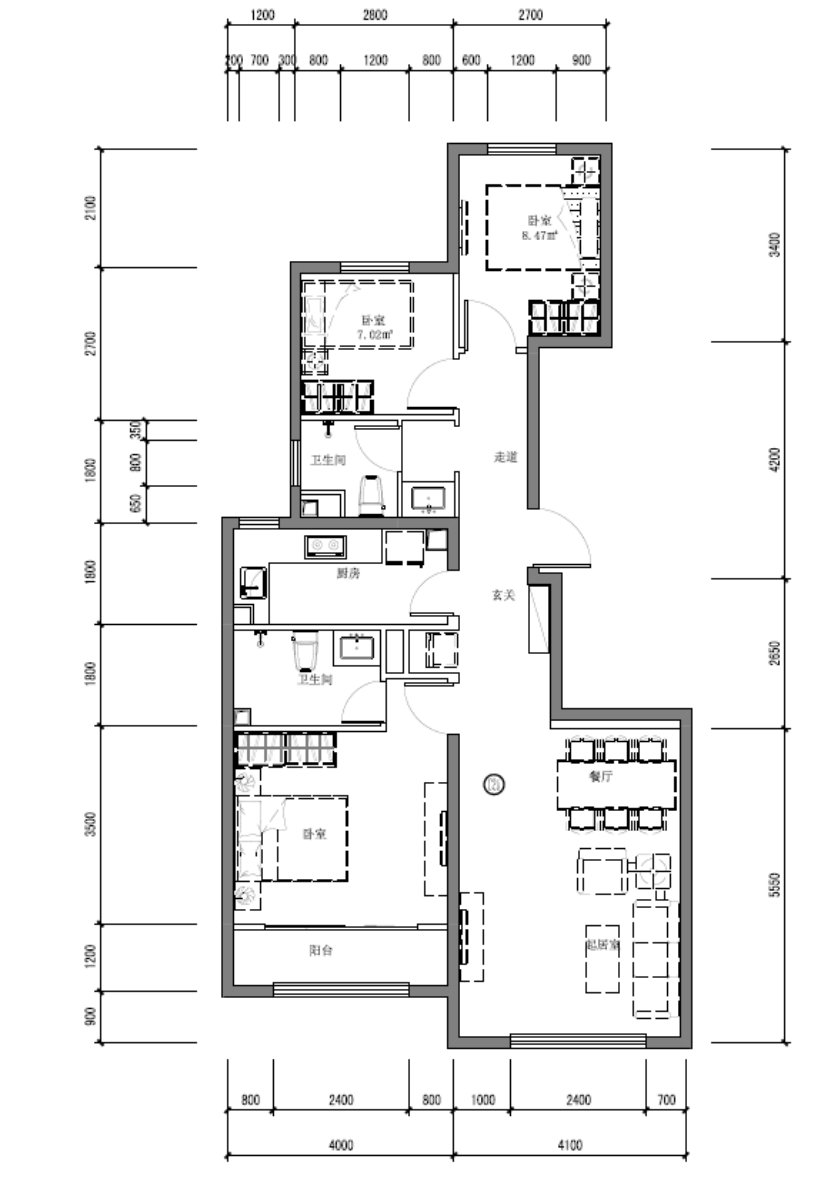
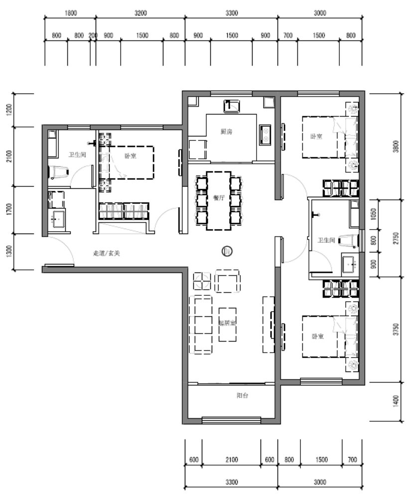
C1户型
建筑面积约: 118㎡
户型所在楼栋:4#/7#住宅楼。
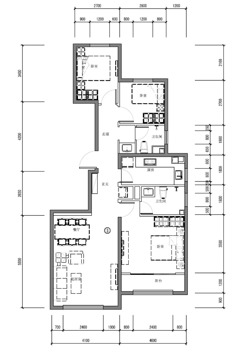
C1反户型
建筑面积约: 118㎡
户型所在楼栋:4#/7#住宅楼。
C2户型
建筑面积约: 118㎡
户型所在楼栋:4#/7#住宅楼。
C2反户型
建筑面积约: 118㎡
户型所在楼栋:4#/7#住宅楼。
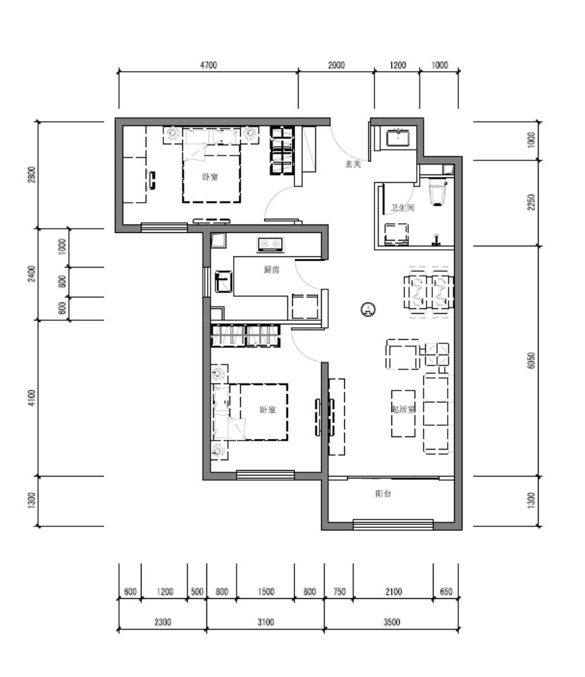
D户型
建筑面积约: 118㎡
户型所在楼栋:3#/5#住宅楼。
D反户型
建筑面积约: 118㎡
户型所在楼栋:3#/5#住宅楼。
E户型
建筑面积约: 88㎡
户型所在楼栋:1#/2#/6#/8#/9#住宅楼。
E反户型
建筑面积约: 88㎡
户型所在楼栋:1#/2#/6#/8#/9#住宅楼。





