昌平区东方蓝海公共租赁住房项目基本情况介绍
一、基本信息
楼盘类型:公共租赁住房
项目位置:北京市昌平区北七家镇未来科学城英才南一街10号院1号楼
装修标准:精装修
租金单价:32.8元/建筑平米·月(不分楼层、朝向)
价格说明:租金单价中包含物业费,不包含供暖费、水费、电费、燃气费、电话费、上网费、有线电视初装及收视费等。
供暖方式:小区集中供暖,30元/建筑平方米·供暖季。
房源数量:本次可配租房源共计3套,其中,中套型3套。
户型面积:中套型:51.81-52.08㎡(零居)
二、项目配套情况
周边交通: 487路、417路,533路公交,京承高速,机场高速。
教育资源:北师大二附中、中关村第二小学、神华管理学院、中国电信学院。
医疗保健:北七家社区卫生服务站。
休闲娱乐:未来科学城滨水公园。
三、户型详细信息
户型介绍:共计2种户型 (中套型2种)
户型示意图如下:
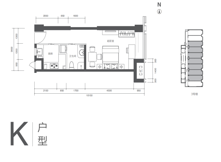
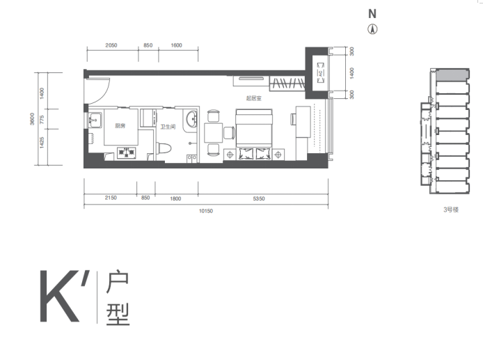
中套型
户型编号:K
居室类型:零居
建筑面积:约51.81㎡
房屋租金:约1699.37元/月
房屋朝向:东
户型编号:K'
居室类型:零居
建筑面积:约52.08㎡
房屋租金:约1708.22元/月
房屋朝向:东
》》
》》





