龙港市2021年人才住房配售房源共两个地块,分别为:
1.龙港市新城XC-6-21地块(锦悦府)18#楼,建筑面积约3014平方米,套数27套,均为毛坯房。该项目由苍南首瑞置业有限公司开发建设,计划于2022年5月31日交付。地块坐落于龙港市新城城南大道南侧、启源路东侧、世纪大道西侧、霞飞路北侧。
2.龙港市新城XC-6-23地块(雲天美筑)9#楼,建筑面积约6666平方米,套数64套,均为毛坯房。该项目由温州景祥置业有限公司开发建设,计划于2023年6月30日开始交付使用。地块坐落于龙港市新城开元路以北、霞飞路以南、启源路以东、世纪大道以西。
具体房源信息见下表:
锦悦府楼盘总平面效果图
雲天美筑楼盘总平面效果图
锦悦府政策性住房 户型图
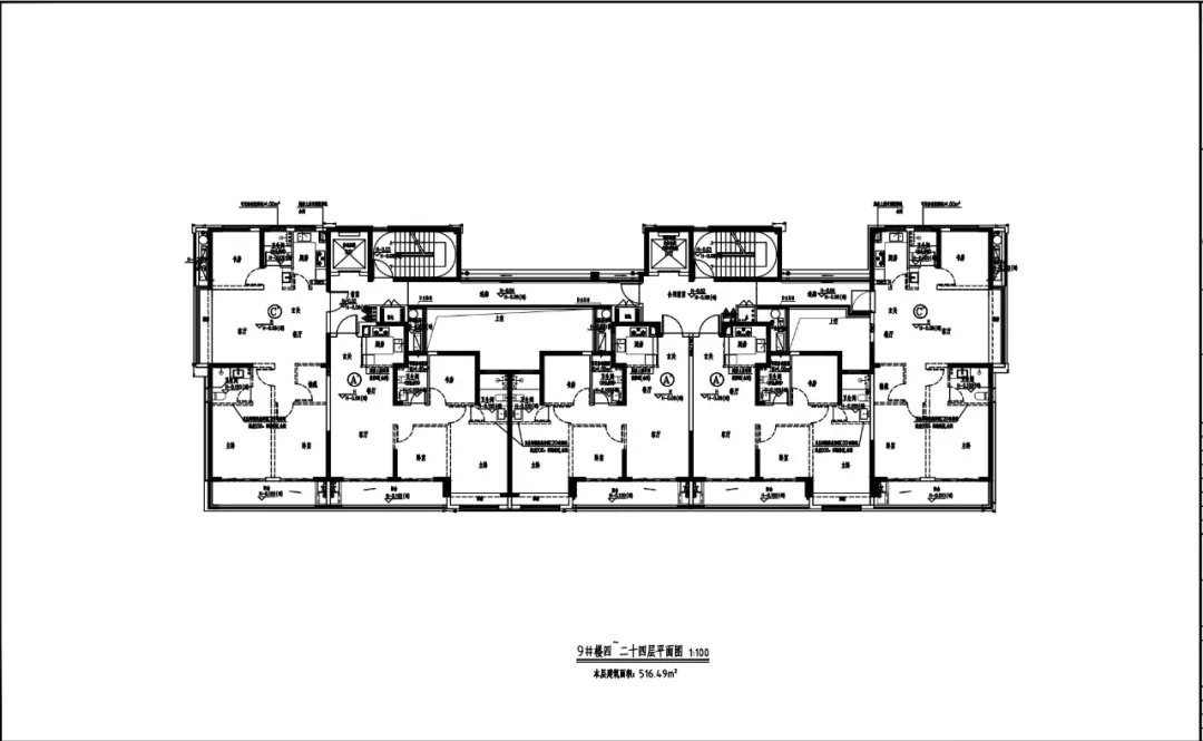
雲天美筑政策性住房 户型图
锦悦府项目详情请咨询该项目楼盘售楼处,地址:国鸿锦悦府(世纪大道与文晖路交叉口),售楼处电话:0577-55589999。
雲天美筑项目详情请咨询该项目楼盘售楼处,地址:雲天美筑销售中心(世纪大道与霞飞路交叉口),售楼处电话:0577-68097777。
点击查看>>>





