大连润泽园配套中学最新进展情况(大连润泽园配套小学)

教育百科2022-09-21 19:41:53未知

  【2021-9-1】

  大连市自然资源局公示润泽园小区配套中学项目

  

  高清大图点此查看

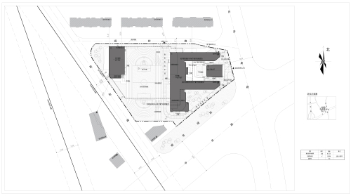
  该项目规划用地1.45公顷,总建筑面积222000平方米,位于规划路、中华路、月牙泉路和现状路围城的区域内。

  编号:2021规划第C018号

  项目名称:润泽园小区配套中学项目

  设计单位:大连城建设计研究院有限公司

  建设单位:大连市甘井子区教育局

  工程证号:建字第210211202100018号

  公告期:自2021年5月17日至建设项目规划核实合格之日止

  联系电话:83722760

本文标签: ,大连市  ,子区  ,项目  ,小区  ,中学  

相关推荐

猜你喜欢

大家正在看