大连体育中心配套开发二期配套小学建设项目公布
高清大图点此查看
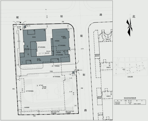
大连体育中心配套开发二期配套小学项目位于西北路以东,规划路沿线,规划总面积为19990平方米。
编号:2020规划第C035号
项目名称:体育中心配套开发二期配套小学建设项目
设计单位:都市发展设计有限公司
建设单位:大连市甘井子区教育局
工程证号:建字第210211202000035号
公告期:自2020年9月9日至建设项目规划核实合格之日止
联系电话:83722760
教育百科2022-09-21 19:40:25未知
大连体育中心配套开发二期配套小学建设项目公布
高清大图点此查看
大连体育中心配套开发二期配套小学项目位于西北路以东,规划路沿线,规划总面积为19990平方米。
编号:2020规划第C035号
项目名称:体育中心配套开发二期配套小学建设项目
设计单位:都市发展设计有限公司
建设单位:大连市甘井子区教育局
工程证号:建字第210211202000035号
公告期:自2020年9月9日至建设项目规划核实合格之日止
联系电话:83722760
大连理工大学2022年硕士研究生招生章程
辽宁师范大学2022年硕士研究生招生简章